P0622: Generator Field F Control Circuit Malfunction
Is your scanner showing P0622?
No worries. We'll show you what it means and how to deal with it.
P0622: Generator Field F Control Circuit Malfunction
OVERVIEWWhat Does The P0622 Code Mean?
A stored code P0622 means that the powertrain control module (PCM) has detected a malfunction with the generator field coil control circuit. The F simply reiterates the field coil control circuit is at fault.
The field coil is probably most recognizable from its windings which are visible through the vent holes on most alternators. The field coil surrounds the generator armature and remains stationary in the alternator housing.
The PCM monitors the continuity and voltage level of the generator field control circuit whenever the engine is running. The generator field coil is integral to generator operation and maintaining battery charge levels.
Each time the ignition is turned on and the PCM is energized, multiple controller self-tests are performed. In addition to running internal controller self-tests, the controller area network (CAN) is used to compare signals from each individual module to ensure that the various controllers are interfacing properly.
If a problem is detected in monitoring the generator field control circuit, a code P0622 will be stored and a malfunction indicator lamp (MIL) may be illuminated,. Depending upon the perceived severity of the malfunction, multiple failure cycles may be necessary for MIL illumination.

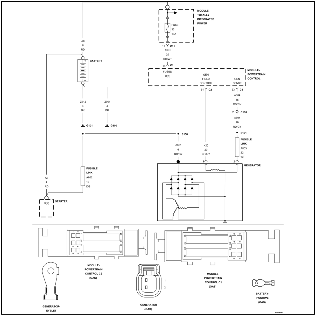
P0622 wiring diagram
What Are The Symptoms Of The P0622 Code?
Symptoms of a P0622 trouble code may include:
- Engine drivability issues
- Engine stall when idling
- Inadvertent engine shutoff
- Delayed engine cranking
- Other stored codes
What Are The Potential Causes Of The P0622 Code?
Causes for this code may include:
- Faulty PCM
- PCM programming error
- Open or shorted generator field control circuit
- Defective alternator/generator
How Serious Is This P0622 Code?
Internal control module codes be considered severe. A stored code P0622 could result in a variety of drivability concerns, including a no-start and/or dead battery condition.
How Can You Fix The P0622 Code?
A diagnostic scanner, a battery/alternator tester, a digital volt/ohmmeter (DVOM), and a source of reliable vehicle information will be required to diagnose a code P0622.
Consult your vehicle information source for technical service bulletins (TSB) that replicate the code stored, vehicle (year, make, model, and engine), and symptoms exhibited. If you find the appropriate TSB, it may yield helpful diagnostic.
Step 1
Begin by connecting the scanner to the vehicle diagnostic port and retrieving all stored codes and freeze frame data. You will want to write this information down, just in case the code proves to be an intermittent one. After recording all pertinent information, clear the codes and test drive the vehicle until the code is reset or the PCM enters readiness mode.
If the PCM enters readiness mode, the code is intermittent and will be more difficult to diagnose. The condition, which caused the P0622 to be stored, may even need to worsen before a diagnosis can be made. If the code is reset, continue with your diagnosis.
Step 2
Use the battery/alternator tester to load-test the battery and make sure that it is sufficiently charged. If it is not, charge the battery as recommended and test the alternator/generator. Follow manufacturer’s recommended specifications for minimum and maximum voltage output requirements for the battery and alternator. If the alternator/generator is not charging, proceed to the next step in your diagnosis.
Use your source of vehicle information to obtain connector face views, connector pin-out charts, component locators, wiring diagrams, and diagnostic flow charts related to the code and vehicle in question.
Step 3
Check to see if there is battery voltage on the alternator/generator field control circuit by using the appropriate wiring diagram and your DVOM. If not check system fuses and relays and replace defective parts as required. If voltage is discovered at the generator field coil control terminal, suspect a defective alternator/generator.
Step 3
If the alternator is charging, and the P0622 continues to reset, use the DVOM to test controller power supply fuses and relays. Replace blown fuses as required. Fuses should be tested with the circuit loaded.
Step 4
If all fuses and relays appear to be functioning as intended, a visual inspection of controller related wiring and harnesses is in order. You will also want to check chassis and engine ground junctions. Use your vehicle information source to obtain ground locations for related circuits. Use the DVOM to test ground integrity.
Step 5
Visually inspect system controllers for signs of water, heat, or collision damage. Any controller that is damaged, especially by water, should be considered defective.
Step 6
If controller power and ground circuits are intact, suspect a defective controller or a controller programming error. Controller replacement will require reprogramming. In some cases, you may purchase reprogrammed controllers through aftermarket sources.
Other vehicles/controllers will require on-board reprogramming that may only be done through a dealership or other qualified source.
Note:
- The field coil is an integral part of the alternator and cannot usually be replaced separately
- Test controller ground integrity by connecting the negative test lead of the DVOM to ground and the positive test lead to battery voltage
Recommended Parts
Below are some recommended auto parts to help you address the trouble code affecting your vehicle and get it running smoothly again:
>>> Alternator
>>> Twippo 372Pcs Waterproof Wire Connectors Kit
>>> ECU
>>> Autel Scanner MaxiCOM MK808S
>>> KAIWEETS Digital Multimeter
Note: During the purchasing process, please check carefully whether the part you want to buy fits your car!
Check This Video For Reference
Reference Sources
Diagnostic Trouble Code (DTC) Guide for P0622 – Ominitek Advanced Technologies, pages 122-123.
